Central Process Facility (CPF)

EXPRO/Sea Dragon Energy (SDX)

Design, Engineering, Supply, Integrate, Test, Commissioning and Startup the E&I scope for SDX Central Process Facility for South Disouq development project – 60MMSCFD

Engineering scope of work (IFR, IFA and IFC) for the following:
• Power/Instruments/F&G - cables sizing, scheduling and routing
• Cables trays design and routing
• Lighting design & calculations
• Earthing & Lightening design & calculations
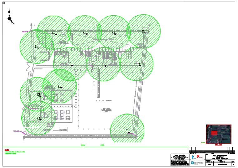
• F&G alarm and detection system (Mapping layout, coverage study . etc.)
• Short circuit calculation, load flow and relay coordination study
• Main LVSG and whole plant power distribution panels
• Integrated Control System (ICSS)
• Prefabricated Power/Control Module
• Plant Metering system

Supplying, Commissioning and Startup for the following packages:
• 500KW Gas Generator housed inside IP54 container - R-SCHMITT GERMANY
• Main LVSWG - EATON
 0.4 KV Smart LVSWG / EATON x-Energy, Form 4b-type7
 4P, 1600A, 65KA/1 sec
 Synchronization system between Diesel & Gas Generators
• 4P Power Distribution Panel
• Qty.7 lighting panels
• ICSS based on SIEMENS S7-400 FH, SIL2 & Fail Safe I/O modules
 Process controls system (PCS)
 Emergency shutdown system (ESD)
 F&G controls system
• 20 KVA UPS, 4hr backup time
• Pre-Fabricated Power/Control Module
 12x3.5x3Mt. shelter / Two rooms (Control/Power)
 Shelter fire alarm and FM200 fighting systems
 Raised floor, MCT and cabling system
 Air conditioning system
• Gas Metering system
 Ultrasonic custody transfer flow meter 8’’ - KROHNE
 Custody transfer flow computer – KROHNE
 Flow Computer cabinet ready to communicate with GASCO SCADA
• Plant Fire & Gas detectors and alarming devices
 Qty.19 Spot Type Hydrocarbon IR Gas Detector
 Qty.2 Open Path Gas Detector
 Qty.15 3-IR Flame Detector
 Qty.12 Manual Alarm Call Point - Red Color
 Qty.3 Emergency Shut Down Push Button
 Qty.18 Beacon – Red/Blue Color
 Qty.9 Multi Tone Site Siren